B+G+13 STORIED (WITH ONE BASEMENT) RESIDENTIAL BUILDING








Description
Id #4001
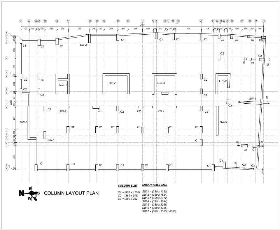
PROJECT NAME AND LOCATION -PROPOSED B+G+13 STORIED (WITH ONE BASEMENT) RESIDENTIAL BUILDING PLAN FOR MST. KHADIZA PARVIN GONG, D/O: AROZ ALI, AT JL NO. 84, KHATIAN NO. RS. 1869, DAG NO. RS-125(PART), 132(PART), 124(PART), MOUZA: CHAK SHYALKOL, P.S : DIST: SIRAJGONJ, BANGLADESH. CLIENT- MST. KHADIZA PARVIN GONG . DESIGN TEAM- TEAM LEADER - ENGR. MD. SHARIFUL ISLAM, PEng. ARCHITECT- ARGHYA KUMAR BISWAS. STRUCTURAL ENGINEER - ENGR. RAFSANUL HAQUE. CAD DETAILS - MD. SADDAM HOSSIAN.